Haus Weitblick
Beschreibung
Das Ferienhaus Weitblick in Prien am Chiemsee wurde komplett renoviert und bietet somit eine moderne und ansprechende Unterkunft für Ihren Urlaub. In Prien am Chiemsee, dem Hauptort am See, gelegen, lösen sich Ihre Alltagssorgen in Luft auf. Tauchen Sie ein in die Urlaubszeit mit Natur, Kultur und Ruhe und genießen Sie die Bergluft im Chiemgau.
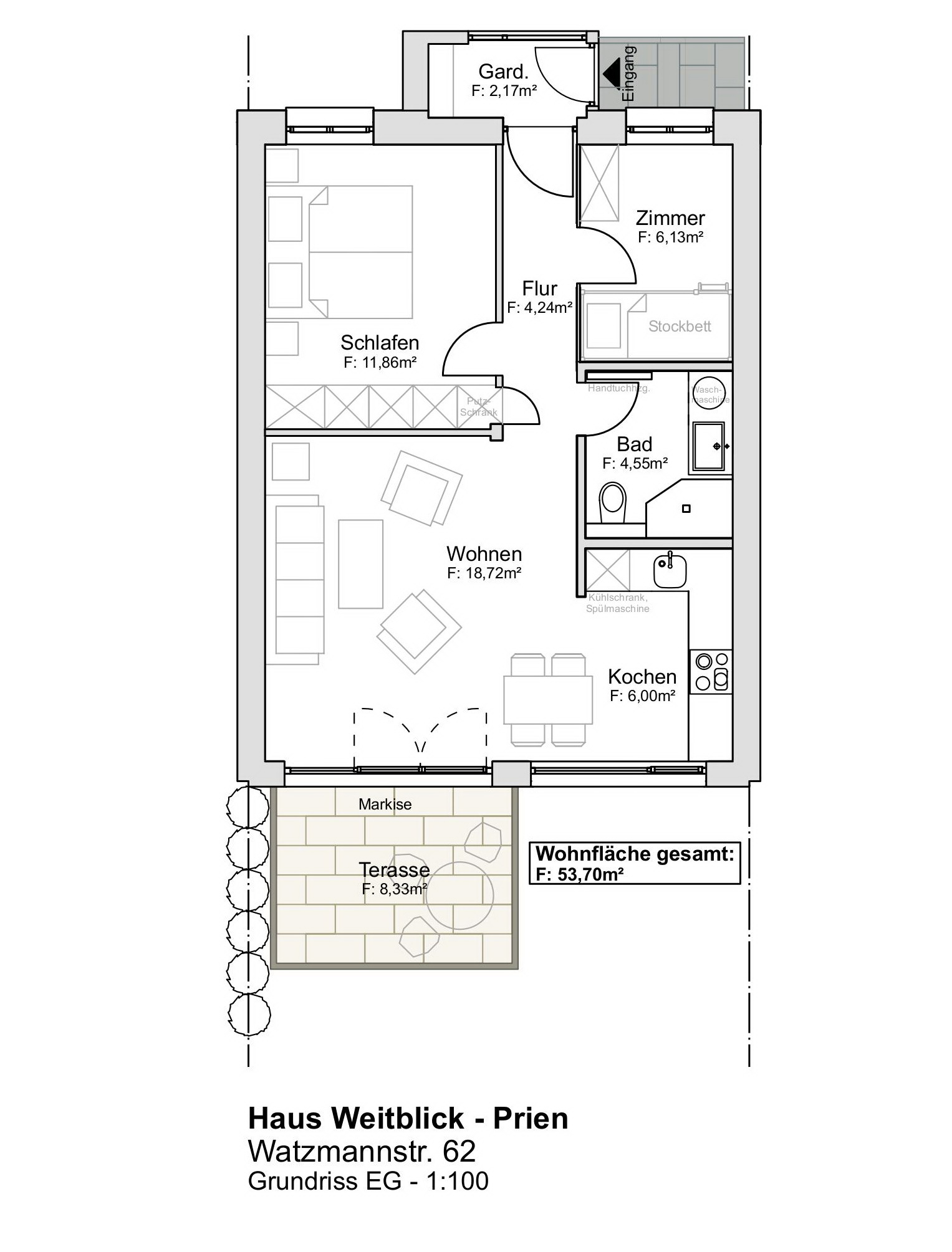
Wohlfühlen vom ersten Augenblick! Hier finden Sie alles auf einer Etage, dem Erdgeschoss des Reihenhauses. Der helle Wohn- und Essbereich mit voll ausgestatteter, offener Küche zeichnet das Herzstück des modernen Anwesens aus. Über den Wohnbereich gelangen Sie auf die nach Süden ausgerichtete Terrasse, somit können Sie optimal die Sonne genießen. Das kleine aber feine Ferienanwesen bietet zwei Schlafzimmer, eines mit einem Doppelbett, das andere mit Stockbett ausgestattet. Das Badezimmer ist mit Dusche, Waschmaschine und WC versehen.
Die einmalige Lage der Ferienhausanlage in Chiemseenähe bietet neben einer ruhigen Gegend unweit des Naturschutzgebietes viele Wanderwege schon vom Objekt aus. Gut zu Fuß erreichbar sind die Strandbäder Schraml bzw. Schöllkopf (dieser ist mit Hund gestattet) am Chiemsee.
Eine Selbstverständlichkeit bei einem Aufenthalt im "Haus Weitblick" ist das kostenlose Wäschepaket. Die Waschmaschine kann kostenlos genutzt werden. WLAN steht kostenlos zur Verfügung.
Dies ist ein Nichtraucherdomizil und erlaubt keine Haustiere.
Schlafmöglichkeiten
Ausstattung
WLAN/Internet
Pkw-Stellplatz
Terrasse
Geschirrspüler
Hund nicht erlaubt
- Kinderreisebett
- Wäschepaket ab einer Buchung von 4 Nächten inkl.
- Kinderhochstuhl
- Außenjalousien
- Raumlüftung
- Fußbodenheizung
- Staubsauger
- Waschmaschine
- Markise
- Garten- oder Balkonmöbel
- Hund nicht erlaubt
- Rauchen nicht erlaubt
- kontaktloser Checkin
- kontaktloser Checkout
- Objekt ist nicht eingezäunt
- Garten
- Terrasse
- Pkw-Stellplatz
- WLAN/Internet
- Radio, CD-Player
- Smart-TV
- Etagenbett
- Doppelbett
- Induktionskochfeld
- Kühlschrank
- Gefrierfach
- Kochfeld 4-Platten
- Geschirrspüler
- Backofen
- Kaffeemaschine (Filter)
- Toaster
- Wasserkocher
- Dusche/WC
- Fön
Lage · Haus Weitblick
- Golfplatz 5,2 km
- Flughafen 59,7 km
- Restaurant 700 m
- Bahnhof 2,2 km
- Bergbahn 13,8 km
- Skigebiet 13,8 km
- Chiemsee 700 m
- Supermarkt 2,1 km
Die wunderschöne Region bietet neben unzähligen Wanderwegen und Ausflugszielen eine Vielzahl an Freizeit- und Erholungsmöglichkeiten. Mit dem Fahrrad oder zu Fuß erreichen Sie in wenigen Minuten den Chiemsee. Hier finden Sie am Schramlbad neben einer großen Liegewiese, auch ein Beachvolleyballfeld sowie einen Bootsverleih. Gegenüber ist der Kletterwald zu finden. Mit dem Fahrrad können Sie von Prien aus nicht nur Unternehmungen um den Chiemsee tätigen, sondern aufgrund der Bergnähe auch Mountainbike-Touren unternehmen. Wir vermitteln Ihnen gerne die passenden Räder, sprechen Sie uns an. Prien ist aber auch ein idealer Ausgangspunkt für Wanderungen, ob im "Flachland", oder auf den Berg.
Ein MUSS ist ein Ausflug mit der Chiemsee Schifffahrt (Anlegestelle Prien am Chiemsee) auf Herrenchiemsee mit Besichtigung des Märchenschlosses von König Ludwig II, sowie einen Abstecher auf die Fraueninsel.
Mit Prien am Chiemsee als Ausgangspunkt stehen Ihnen viele Unternehmungen zur Verfügung!
